导语:日式风格的清新自然、简洁淡雅,总是给人一种清净、优雅的感觉,这对于追求宁静的都市人是个不错的选择。
本案例并非传统意义的日式风格,依据业主喜静崇简的居住要求,摒弃了传统日式的古朴、庄重和现代追随潮流的形式之美,将现代时尚与日式的禅意境相结合,简约中不乏深韵,内敛中蕴含高雅,心旷神怡,悠然自得,从而在纷扰的现实生活中找到身心的平衡。

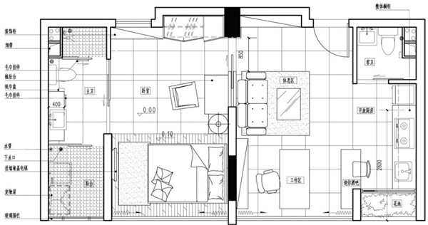
客餐厨、工作区开放式设计,以生活动线分区各个功能空间,让布局不显凌乱又保持了空间的通透。

象牙白纯色仿古地砖、金属镶边墨镜、黑色原木家具,一反白色墙面与原木地板、家具的传统日式印象,在素雅质朴中注入现代设计元素,时尚大方之余,从视觉上加深了室内的纵深感、丰富了空间层次。米色地毯、沙发、枯山水画饰、竹编卷帘则点缀出一方自然洒脱、轻松惬意的居家氛围。

工作区没有什么繁复的线条设计,干净利落。直纹水曲柳墙面和黑色木制书桌将工作区分隔出来,同色嵌墙陈列架既可以作为书架使用,又可以陈列装饰摆件,兼具极强实用功能同时,让空间更富情调和底蕴。

卧室与客厅的布局遵从日式风格的“分隔与流通”,用金属镶边的透明玻璃推拉门取代日式推拉格栅,既保持了两个空间的通透与灵动,又保证了卧室的私密性。

圆形顶射灯包裹着实用性十足的榻榻米床,床前铺设碎花包边的麻质地毯,一对日式风浓郁的地灯分置床头,将温馨的睡眠氛围诠释得恰到好处。落地窗设计最大限度引入自然光源提亮室内采光,同时极大延伸了小户型的视野。

和风印花床品柔软轻肤,米色与背景墙相衬,保持了睡眠区整体氛围的和谐统一,恰到好处的暖色光源在简洁淡雅中蓄养出一片祥和沉静,将正在阅读或品茶之人带入深深沉思,不知不觉那根疲惫的神经就这样被唤起了。

定做浴室镜隐藏收纳功能,保持卫浴简约美观同时充分满足收纳需求,境下暗藏灯管,灯管的聚光功能与顶面散光的射灯纵向延伸立体空间,使得整个空间明亮、宽敞。
家要用心布置,生活要用心经营。金煌装饰第十一届“金煌杯”【星级家环保全装】参赛样板房全国钜惠征集,集聚全国优质设计、材料、施工等资源,全心实现您对家的想象和对生活的期盼,美好生活由家开启!咨询、报名热线:400-0504-188.